CH

Galeriegeländer Klasik - obere

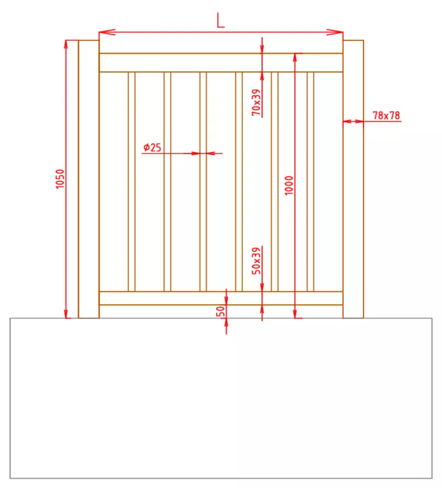
Säulen 78x78 mm, Handläufe 70x39 mm, Untergurt 50x39 mm, Stäbe D25 mm

Geländertyp
Material
197,76 
- +
2-3 Wochen
Produktcode: zabr_vrchni

Jede frei zugängliche Kante(n) der Deckenöffnung neben dem Treppenausstieg muss mit einem Handlauf versehen werden.

Die Pfosten haben einen Querschnitt von 78x78 mm und werden mit einem Einzeldübel befestigt, der fest im Bodengrund verankert werden muss. Aufgrund der Geländerhöhe von 1000 mm wirkt ein Meterhebel auf den Anschlagpunkt! Daher ist auf eine feste Verbindung der Handläufe mit den Pfosten zu achten.

Tragen Sie in der unten stehenden Tabelle die Nettolänge des Handlaufs 70x39 mm (und des Unterhandlaufs 50x39 mm) und die Gesamtzahl der Pfosten ein 78x78 mm. Die Anzahl der Angüsse D25 mm ist ein Vorschlag für die Länge des Handlaufs im Abstand von 120 mm, der Handlauf und der Untergurt werden ungebohrt geliefert.

Bei mehreren Abschnitten der Galerie tragen Sie die Nettolängen der Handläufe dieser Abschnitte bitte in die nächsten Zeilen ein.

Zum Bohren kann ein Flachbohrer aus dem Sortiment verwendet werden.